Profesionální 2D konstrukční řešení DraftSight, které nabízí podobné funkce jako AutoCAD, obsahuje funkci PDF Import. Pokud často přijímáte výkresy v PDF a chcete je exportovat do populárních formátů DWG nebo DXF, pomůže náš návod.
Údajně druhý nejrozšířenější 2D CAD DraftSight z portfolia společnosti Dassault Systèmes obsahuje doplňkový modul pro import dat ve formátu PDF. Tento nástroj převádí výkresovou dokumentaci na základní entity – a ty lze ukládat do populárních formátů DWG a DXF. Doplněk PDF Import dokáže rozpoznávat ve výkresu hladiny podle barevnosti a rozložené importované bloky lze dále jednoduše upravovat. Převod PDF dokumentů je možné i po větších dávkách.
Postup pro import dat ve formátu PDF:
Stáhněte si bezplatnou verzi řešení DraftSight a spusťte instalaci.
Po instalaci stáhněte zkušební 30denní verzi doplňkového modulu PDF Import ze stránek společnosti Graebert.
Spusťte instalaci doplňkového modulu.
Spusťte DraftSight a v záložce Nástroje klikněte na Doplňkové moduly.
Zkontrolujte, zda je modul PDF Import aktivní.
V záložce Vložit spusťte modul PDF Import.
Vyhledejte dokument ve formátu PDF. V záložkách Bod vložení, Měřítko a Otočení můžete upřesnit, jak se mají importovat data. Okno pro zobrazení náhledu ve spodní části usnadní vyhledání správného dokumentu. Po vyhledání dokumentu stiskněte tlačítko OK.
Pozn.: Po prvním spuštění je nutné provést aktivaci prostřednictvím aktivačního kódu, který vám po vyplnění osobních údajů bude zaslán na e-mail.
Po aktivaci se importují data ve formě bloků, které je možné dále editovat.
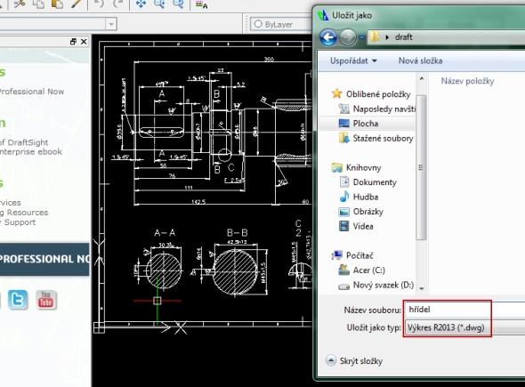
Uložte dokument ve formátu DWG nebo DXF.








